Four Models. One Engineered System.
Every Zona Verde home is built with our steel-panel system: superior insulation, pre-routed electrical and plumbing, and a factory-applied powder-coat finish built to outlast traditional paint.

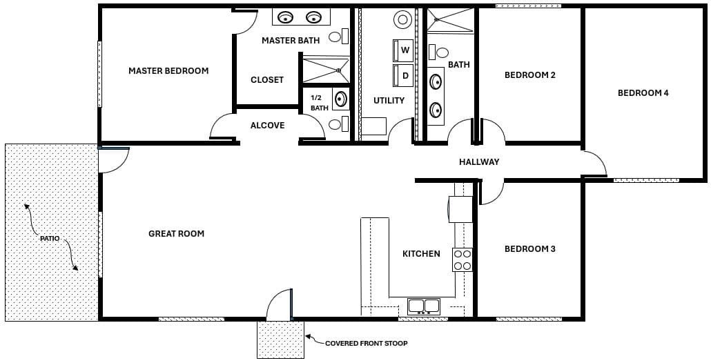
Floor Plan

4-Bedroom | 2.5 Bath | 2,022 sq ft
Starting at: $172,600
For superstructure and site delivery (lower 48 states)
Over 2,000 sq ft of modern living space designed for families. Four bedrooms, two full baths, a half bath, and an oversized utility room. Clerestory windows and expansive glazing flood the interior with daylight.
Key Details
- ▪Four large bedrooms with generous proportions
- ▪Two full bathrooms with contemporary fixtures
- ▪Guest half bath
- ▪Open-concept kitchen, dining, and living zones
- ▪Granite countertops, stainless steel appliances, and ample storage
- ▪Oversized utility room with laundry hookups
- ▪Clerestory windows and flat-roof architecture

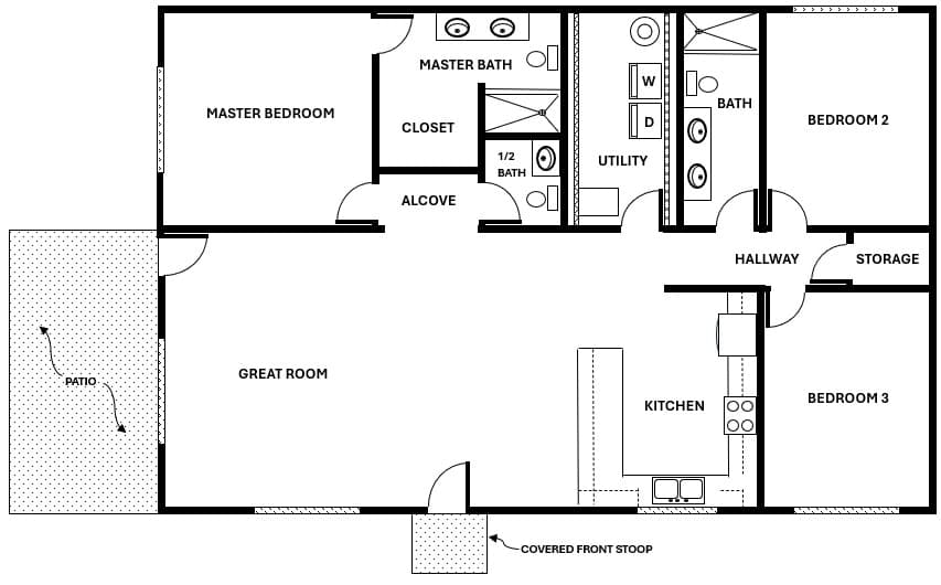
Floor Plan

3-Bedroom | 2.5 Bath | 1,800 sq ft
Starting at: $157,800
For superstructure and site delivery (lower 48 states)
Three bedrooms, two full bathrooms, and a half bath with a dual-entry layout. Ideal for multigenerational households or live/work arrangements. The expansive kitchen and living area anchor the home with abundant natural light.
Key Details
- ▪Dual-entry layout for flexible living
- ▪Three large bedrooms with ample natural light
- ▪Two full bathrooms plus a guest half bath
- ▪Open-concept kitchen with granite countertops and full appliance suite
- ▪Large utility room with laundry hookups and storage
- ▪Oversized windows and clerestory glazing

Floor Plan

2-Bedroom | 2 Bath | 1,365 sq ft
Starting at: $121,900
For superstructure and site delivery (lower 48 states)
Two full bedrooms, each with a private bathroom. The open floor plan connects kitchen, dining, and living areas under a light-filled ceiling with clerestory accents.
Key Details
- ▪Open-concept living, dining, and kitchen zones
- ▪Two generously sized bedrooms with natural light
- ▪Two full bathrooms with modern fixtures
- ▪Full kitchen with granite countertops and stainless steel appliances
- ▪Clerestory windows and flat-roof profile

Floor Plan

1-Bedroom | 1 Bath | 1,000 sq ft
Starting at: $86,700
For superstructure and site delivery (lower 48 states)
A compact, intelligently designed home with soaring ceilings and an open floor plan that makes every square foot count. Clerestory windows draw natural light deep into the living space. The full kitchen features granite countertops and stainless steel appliances. A spacious bedroom accommodates king-size furnishings, and the contemporary bathroom features a full shower unit with modern fixtures.
Key Details
- ▪Elevated ceilings throughout
- ▪Open-concept kitchen, dining, and living area
- ▪Clerestory windows for natural light and architectural interest
- ▪Full kitchen with granite countertops and stainless steel appliances
- ▪Spacious primary bedroom
- ▪Full bathroom with contemporary fixtures

Multi-Unit Options
Duplex and Row Home Configurations
In addition to our standalone models, Zona Verde offers duplex and row home configurations for higher-density developments. These layouts use the same engineered steel-panel system and standard finishes, adapted for shared-wall construction.
View Our ProjectsConfigure Your Home
Ready to See Your Options?
Our home configurator is coming soon. In the meantime, contact us to discuss your project requirements and get a personalized consultation.